| |
Von den ersten Gedankenbis zum Vertrag August 2006 Minttu
und Mailin sind in Deutschland. Wir unternehmen einige Ausflüge, aber
meine Gedanken schweifen schon oft in die Zukunft ab. Wenn wir zusammen
leben wollen müssen wir eine neue Bleibe finden. Alles was mir bisher
zur Verfügung steht ist zu klein. Faktisch gesehen gibt es 3
mögliche Lösungen:
- Wir
suchen uns etwas in der Nähe meiner (aktuellen) Arbeitsstelle im
Rhein-Main-Gebiet, wobei schon rein aus finanziellen Gründen dieses
"etwas" dann nur eine Eigentumswohnung sein kann - gekauft oder
gemietet.
- Wir suchen unsere Bleibe in meiner
Heimatstadt Bad
Kreuznach oder Umgebung. Hier kann man für angemessenes Geld auch noch
ein Haus erwerben.
- Wir suchen uns einen Bauplatz im
Raum Bad Kreuznach und bauen ein neues Haus.
Ich
nutze jede Gelegenheit um nach Immobilien zu schauen. Eine ETW in einem
größeren Haus kann ich mir von Tag zu Tag weniger vorstellen. Dazu
kommt, dass Minttu und Mailin im Rhein-Main-Gebiet völlig auf sich
alleine gestellt wären. Im Raum Bad Kreuznach wohnen meine Eltern und
auch
mein Bruder, das soziale Umfeld ist dadurch viel besser. Einige
angebotene Häuser sind nicht schlecht und wären auch sicherlich
finanzierbar. Trotzdem: so richtig begeistern kann mich keines davon.
Wer mich kennt weiß, dass ich eher mal etwas ausgefalleneres (aber
nichts extremes) liebe. Insbesondere hat es mir die offene Galerie in
meiner Zweitwohnung angetan. Und ein Haus mit einer offenen Galerie ist
immer noch die Ausnahme. Dagegen ist das Angebot an
Bauplätzen
reichlich. Alleine in der Stadt Bad Kreuznach gibt es einige
Neubaugebiete. Und auch in den Orten des Kreises (wegen der Anbindung
an das Rhein-Main-Gebiet interessieren mich nur die östlich der Stadt)
gibt es hin und wieder gute Bauplätze. Insbesondere in der kleinen
Gemeinde Dorsheim gibt es 2 schöne Bauplätze. Um ein bischen
ein
Gefühl zu bekommen, was Minttu mag besuchen wir die Musterhaus-
Ausstellung in Bad Vilbel. Für mich bringt dies viele neue
Erkenntnisse, aber wenig hinsichtlich Minttus Vorlieben. Für sie ist
das eine fremde Welt.
September/Oktober 2006 Mein
Entschluss ist weitestgehend gereift: wenn schon dann soll es so sein
wie es mir gefällt: und da bleibt nur selbst planen und bauen. Wegen
der zu erwartenden räumlich eher etwas angespannten Lage soll es
schnell gehen. Im Internet habe ich mich erst einmal über die
verschiedenen Bauarten (insbesondere Vergleich konventionell gegenüber
Fertigbau) informiert. Klar, es gibt immer Vor- und Nachteile, aber
hier hatte Fertigbau für mich schnell mehr "Punkte gesammelt". Von
gut einem Dutzend Anbietern habe ich mir Unterlagen angefordert. Die
Kataloge türmen sich und es kommen schon die ersten Anrufe der
Vertreter. Die wimmele ich aber alle noch ab. Erst will ich mir im
klaren werden wie das Haus in etwa aussehen soll. Deshalb
achte
ich nicht nur auf den Gesamteindruck, sondern möglichst auch auf
Details. Viele Post-Its zieren die Kataloge und Prospekte, nachdem ich
manche mehrmals durchgeblättert habe. Aber es kristallisiert
sich immer mehr heraus:
- Hersteller
B hat ein Haus, bei dem finde ich den Grundriss nahezu perfekt.
Lediglich der HWR (Hauswirtschaftsraum) ist überflüssig, da ich auf
jeden Fall mit Keller bauen will.
- Hersteller K hat
ein Haus mit
einer interessanten Dachkonstruktion. Das gefällt mir gut (übrigens
auch die übrige Außenausstattung). Der Zuschnitt der Räume innen ist
allerdings gemäß dem Motto: Quadratisch/Rechteckig - praktisch -
schlecht.
Alle
wesentlichen Punkte gehe ich mit Minttu bei unseren "Chat-Sessions"
Sonntags Nachmittags durch. Meistens kommt von ihr ein OK. Ich denke
ihr fehlt momentan noch komplett die Vorstellungskraft. Das verwundert
nicht. Hersteller B hatte für die Essecke einen Trapezerker
eingeplant. Sowas gefällt mir nicht. Einfach rauslassen geht aber
nicht, da fehlt mir der Platz sowohl im Essbereich als auch
insbesondere im darüber liegenden Schlafzimmer. Bei einem anderen
Hersteller hatte ich einen schönen 3-Ecks-Erker gesehen. Den setze ich
dort ein, bekomme aber aus China ein Veto. Schlafzimmer müssen
rechtwinklig sein. Ich überlege und probiere herum, aber ohne die
Planung komplett über den Haufen zu werfen werde ich das nicht
hinbekommen. Also ist Überzeugungsarbeit gefragt. Mit dem Vorschlag,
den Erker im Schlafzimmer nachts durch Lamellen zuzuziehen (eine Lösung
in diese Richtung brauchen wir sowieso) können wir uns einigen.
Noch
etwas wird mir sehr schnell klar: wenn ich
die Anbieter auch nur einigermaßen vergleichen will dann brauche ich
eine "Basis", so dass sich die Angebote in der Grundform ähneln. Ich
nehme mir den Grundriss von B, werfe den HWR zu Gunsten einer größeren
Küche raus und füge das Ganze in den Außengrundriss von K ein. So
entsteht ein Plan für das EG und für das OG, der ergänzt um ein paar
Hinweise von MUSTs über CANs bis hin zu TABUs dafür sorgen soll, dass
die Hersteller meine Wünsche gut berücksichtigen.
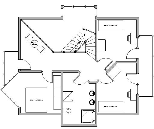
Entwurf
Erdgeschoss: Entwurf Obergeschoss:  MUSTs,
CANs und TABUs:
Anforderungen
- Wohnzimmer
- Esszimmer/-bereich
- Küche
(bevorzugt:
offener Wohn-Ess-Küchenbereich zusammen)
- Arbeitszimmer
- Schlafzimmer
- Kinderzimmer
- Kinder-/Gästezimmer
- offene
Galerie
bevorzugt:
- Außengestaltung:
„nicht überladen, aber mit „Pepp“
- kein
einfaches Rechteck, aber auch nicht zu verspielt
positive
Aspekte:
- rechteckige /
dreieckige Erker
- viel
Glas (z.B.
bodentiefe Fenster, Wintergarten)
- Eck-Eingang
- Balkon
(optisch
„leicht“ wirkend
- Dachflächenfenster negative
Aspekte:
- runde
oder x-eckige
Erker
- Gauben
(evtl. 1
größere Gaube ok)
- schräge
Fronten
(ausgenommen Haustür)
- zuviel
Einsatz von
Holz
- Windfang
mit Platz für Garderobe und Schuhschrank
- keine
große Diele/Flur
- Treppe(n)
in Wohn-/Essbereich integriert
- Treppe
zum DG:
- eher „leicht“ wirkend (durch aufliegende Stufen
statt Außenwangen) - bevorzugt L-, (ungleiches) U- oder
Spitzwinkel-Form (nicht
rund oder gerade) - gestalterische
Abwechslung zur klaren Außenform durch 135°-Ecken
- offene
Galerie mit kleiner „Sitzecke“
- harmonischer
Materialmix (z.B. keine „Überladung“ mit zuviel Holz
- Glastüren
- Bodenbeläge:
Fliesen (Bad/Küche), Kork, Laminat
- Ausstattung/Technik:
- mit
Keller
- gute
Energiewerte
- Heizsystem:
Wärmepumpe? Pellets? Öl?
- Fußbodenheizung
- Photovoltaik?
- weitere
Vorlieben:
- Gestaltung
mit Farbe (bevorzugt „ausgefallene“ Farben)
- Kochinsel
bzw. Tresenlösung
- Gäste-WC
- bodentiefe
Fenster
Ende Oktober 2006 In
mehreren Gesprächen mit meinen Eltern reifte immer mehr der Gedanke,
dass ich auf dem elterlichen Grundstück (meine Eltern hatten früher
eine Gärtnerei, das Gelände hat nahezu 2800 qm) bauen könnte. Dieser
Gedanke hat sicherlich etwas für sich. Die Lage ist gut. In die
Innenstadt sind es nur 1 bis 1,5 Kilometer und genau so weit ist es
auch bis zur 4-spurigen B41, mit der man eine gute Anbindung an die
Autobahn hat. Und für meine Eltern ist dies auch eine gewisse Art von
Sicherheit. Die Jüngsten sind sie nun auch nicht mehr. Ich
frage
Minttu, was sie von dieser Idee hält. Nachdem ich mir sicher bin dass
sie nichts dagegen hat favorisiere ich diese Lösung. Als möglicher
Bauplatz schwebt mir der bisherige "Schuppen" vor, eine uralter Rohbau
(nur Erdgeschoss) mit Wellplatten-Dach, der bisher als Lager diente.
Meine Eltern allerdings möchten die Hälfte des Gebäudes erhalten und
lieber, dass ich weiter in bisherigen Gewächshaus-Bereich
hineinrutsche. Das verringert zwar meine Gartenfläche an der Terrasse,
aber ich stimme zu. Anfang November 2006 Aus
den Herstellern habe ich mir B und K (die beiden aus denen ich den
Entwurf gebastelt habe) sowie L ausgesucht, mit denen ich detaillierter
darüber sprechen möchte und von denen ich gerne ein Angebot hätte.
Einen vierten will ich noch dazuholen, aber ich bin mir noch nicht
sicher ob es B2 oder R sein wird. Ich fahre nach Bad Vilbel.
Der
zuständige Verkäufer von B hat dort seinen Sitz. Habe aber keinen
Termin ausgemacht, notfalls kann ich ja bei anderen Herstellern
schauen. Und tatsächlich, er ist nicht da. Ich schaue mal bei R rein.
Freundlich werde ich begrüßt und nachdem ich mich etwas umgeschaut habe
kommen wir ins Gespräch. Ich schildere meinen aktuellen Stand und gerne
ist man bereit, mit mir Details zu besprechen. Einen ersten Entwurf
soll ich in wenigen Tagen erhalten und wenn wir dann im Ping-Pong-Spiel
daran noch geschliffen haben werden sie eine Kalkulation machen. Mit
L kann ich für den übernächsten Tag einen Termin vereinbaren. Wir
führen ein langes, sehr intensives Gespräch. Auch hier habe ich ein
sehr gutes Gefühl und ein erster Entwurf inkl. Preisschätzung wird mir
bald zugesagt. Auch B habe ich inzwischen erreicht. Im
Gegensatz zu
R und L kann dieser Verkäufer auf dem bestehenden Haus aus seinem
Programm auf- und nur die Änderungswünsche einbauen. Entsprechend
schnell und professionell geht das erste Gespräch. Nur mit K
brauche
ich etwas länger zur Terminvereinbarung. Was auch an mir liegt,
Mannheim ist leider nicht so gut für mich zu erreichen wie Bad Vilbel.
Aber nach gut einer Woche schaffen wir es. Für ihn gilt ähnlich wie für
B: er muss "nur" die Änderungen in seinen bestehenden Plan einbauen.
Gut eine Woche soll das dauern. Schnell
wird mir bei den ersten Gesprächen klar, dass ich mir in einem (diesem)
sehr frühen Stadium Gedanken über die Heizung machen sollte.
Konventionell mit Gas oder Öl? Oder Holzpellets? Oder eine Wärmepumpe?
Und was ist eine Lüftungsheizung??? Gas fällt flach. Mal
abgesehen
davon dass ich auf den Gasanschluss komplett verzichten und damit diese
Kosten sparen will, eine Energiequelle, deren Preise fiktiv an die
aussterbende Quelle Öl gekoppelt sind ist mir zuwider. Solange Gas
günstiger wäre hält man den Preis auf diese Weise hoch. Und wenn Gas
teurer im Einkauf würde? Dann garantiere ich hebt man die Bindung auf... Dann
schon lieber gleich Öl. Aber wer investiert heute schon in eine
aussterbende Energiequelle? Das kann bestenfalls eine Kostenfrage sein. Pellets?
Waren in der letzten Zeit der Renner - mit der Folge das sie inzwischen
kräftig im Preis angezogen haben. Und dann: der Ablauf ist zwar schon
weitestgehend automatisiert, aber Anlieferung und Ascheentsorgung
bleiben doch. Luft-Wasser, Wasser-Wasser, Sole-Wasser,
Wärmepumpen
gibt es in verschiedenen Ausprägungen. Der Wirkungsgrad ist -
verständlicherweise - bei einer WP mit Tiefenbohrung wegen der höheren
Temperaturen im Erdinnern am besten. Allerdings kostet so eine Bohrung
auch ordentlich. Und fällt für mich sowieso flach, ist im
Wasserschutzgebiet nicht erlaubt. Bleibt die Fläche statt Tiefenbohrung
(Platz hätte ich ja) oder Luft als Wärmequelle. Ahh, und
Lüftungsheizung ist im Prinzip eine Luft-Luft-WP. Statt Wasser
(Heizkörper oder Fußbodenheizung) wird Luft erwärmt und in die Räume
geblasen. Apropo Lüftung. Neue Häuser sind aus energetischen
Gründen
ja sehr gut gedämmt. Unerwünschter Luftwechsel ist auf ein Minimum
reduziert. Energetisch sehr sinnvoll erfordert es aber für die
Luftqualität und Feuchteregulierung eine gezielte, regelmäßige Lüftung.
Entweder manuell oder mit einer KWL-Anlage (Kontrollierte
Wohnraum-Lüftung). So gut kenne ich meinen chinesischen Familienzuwachs
schon: das Fenster wird viel zu oft und zu lang aufgerissen. Da wäre
dauerhafte Unmut vorprogrammiert. Deshalb - und weil es sich durch die
Wärmerückgewinnung sicherlich energetisch gut rechnet - ist für mich
schnell klar, dass eine KWL Sinn macht.
Mitte/Ende November 2006 R
hat mir seinen Entwurf zugesandt. Sie haben meinen Erstentwurf
weitestgehend übernommen und nur kleine Änderungen (z. B. an der
Treppe) vorgenommen. In einem Gespräch wird erläutert warum. Das passt,
sie können hier gerne mal den Preis kalkulieren. Auch L hat
sehr
schnell einen Entwurf erstellt. 3-dimensional mit "durchwandern" und so
wird mir stolz das Ergebnis präsentiert. Es ist nicht schlecht, aber so
richtig zugehört oder meine Liste gelesen hat er nicht. Die Galerie ist
klein ausgefallen und diese Rundtreppe. So sehr er mir auch von deren
Vorteilen vorschwärmt, damit kann ich mich nicht anfreunden. Dafür habe
ich hier aber schon mal eine erste preisliche Vorstellung. B
hat
sich auch gemeldet. Ich fahre wieder nach Bad Vilbel und er stellt mir
den Entwurf vor. Passt gut, alles notwendige dabei. Der Preis
allerdings,... - naja, mal abwarten wenn ich die 4 untereinander
vergleiche. K ruft mich an. Er konnte leider nichts tun, da er
mit
anderen Aufträgen zu sehr beschäftigt war. Jetzt geht er erst mal in
Urlaub. Er meldet sich dann direkt nach Weihnachten...
Anfang Dezember 2006 Ok,
K fehlt, also vergleiche ich mal B, L und R. Meine Excel-Tabelle wächst
mit Daten, was wo wie drin ist oder auch nicht. Fehlen Leistungen die
man braucht kalkuliere ich diese am Ende der Tabelle dazu. Das
Ergebnis ist klar: L ist um ca. 15.000 Euro günstiger als R und dieser
nochmal gut
tausend Euro günstiger als B. Das Ergebnis überrascht, zumal der
Ausgangswert (Basispreis) bei B wesentlich günstiger aussah. Was
tun? L hat den klar schlechtesten Entwurf, ist aber günstiger. Zudem
hat B das Angebot limitiert auf Anfang Januar und angekündigt, dass der
Preis danach wahrscheinlich steigen wird, da eine Preiserhöhung zum
01.01. geplant ist. Und R hat noch mit 16% Mehrwertsteuer gerechnet, da
sie bei Auftragserteilung noch in 2006 die höhere
Mehrwertsteuer in Form
eines Preisnachlasses vergüten. Mit L den Entwurf überarbeiten? Oder
mit R oder B in Preisverhandlungen eintreten? B macht
eigentlich
wenig Sinn. Der Eindruck von R ist besser. Ich entscheide mich mit
"offenen Karten" zu spielen und unterhalte mich mit R. Sie fragen wer
die Konkurrenten sind. Ich sage dass L ein um - auf ein
Vergleichsniveau umgerechnetes - Angebot unterbreitet hat das 15.000
Euro besser ist, B leicht darüber liegt und K weiter aussteht.
Man bittet mich um ein paar Tage Geduld, sie wollen nochmal
kalkulieren.
Dezember
2006 Die
Tendenz bzgl. Heizung geht immer mehr Richtung Luft-Wasser-Wärmepumpe.
Mit einer Luft-Luft-WP gleich Heizung und Lüftung zu kombinieren klingt
zwar verlockend, aber ich befürchte man verliert hier an Flexibilität.
Zwei getrennte Anlagen geben einfach mehr Kombinationsmöglichkeiten. Völlig
offen ist das Thema Kühlung. Mit der Lüftungsanlage geht das offenbar
nur sehr bedingt. Und dafür bräuchte man einen Erdwärmetauscher, der
nochmal finanziell gut zu Buche schlägt. Was es am Markt gibt sind
LW-WP mit Kühlfunktion. Ich frage mal bei einem dieser Hersteller an,
zumal ich weiß dass die von mir ins Auge gefassten Haus-Hersteller mit
anderen Herstellern von Wärmepumpen zusammenarbeiten.
Kurz vor Weihnachten 2006
R
hat sein Angebot aufgebessert. Und ist tatsächlich nahe an das Angebot
von L herangerückt. Klar, ich weiß nicht was bei L beim Preis
noch
drin wäre. Und ein Angebot von K werde ich auch erst nach Weihnachten
erhalten.
Weihnachten
2006 Ich überlege was ich machen soll. Das
Angebot von R gilt nur noch bis zum Jahresende. Danach erhöht es sich
um die 3% Mehrwertsteuer. K will erst Anfang des neuen Jahres ein
Angebot abgeben. Und bei L habe ich nicht nachgefragt ob preislich noch
etwas drin ist. Will ich das? Will ich dort nachfragen? Der
Eindruck war schlechter als bei R. Wenn sie nochmal nachlegen wird die
Differenz wieder größer. Und die 3% Mwst. sind auch einige Tausender.
Und K? Seine erste grobe Schätzung war schon in der Tendenz in Richtung
der Werte von L und R. R hat mir angeboten - wenn ich das
Angebot
annehmen will - auch "zwischen den Jahren" in die Zentrale zu
kommen, um mir dort das Bemusterungs-Zentrum anzusehen. Wenn mir das
dann zusagt kann ich den Vertrag noch rechtzeitig unterschreiben, um
mir die 3% Vorteil zu sichern.
29. Dezember 2006 Ich
entscheide mich für R und fahre an den Stammsitz des Unternehmens. Dort
zeigt man mir das Bemusterungs-Zentrum, welche Auswahlen es gibt und -
sicherlich von besonderem Interesse - was es an Auswahl gibt die schon
im Preis enthalten ist und wo Mehrpreise fällig würden. Auch hier ist
mein Eindruck von R wieder sehr gut. Eine klare Darstellung und eine
reichhaltige Auswahl. Hier sollte sich auch bei vielen Punkten im
Standard - und damit ohne weiteren Aufpreis - etwas finden lassen. Als
zeitliche Planung kalkuliert man bei günstigem Verlauf der
Genehmigungen und Finanzierungen eine Fertigstellung Ende August 2007. Ich
unterschreibe den Kaufvertrag und mit meinem Hauptgesprächspartner
während der letzten Wochen gehe ich anschliessend noch zum Essen. Mit
dem Verkäufer vereinbare ich, dass wir uns beidseitig bzgl. der LW-WP
mit Kühlung informieren und ich die WP ggf. austauschen kann. Eine
wichtige Entscheidung ist getätigt. Nun kann es losgehen! Und so sieht
das Haus nun in etwa aus (das Zeichenprogramm hat Probleme mit den
Fenstern im Dachreiter - diese fehlen):


Was
hat sich wesentlich geändert gegenüber meinem Entwurf, mit dem ich bei
den Herstellern angefragt habe? Ein paar Punkte wurden überarbeitet:
- Die
Treppe wurde auf U-Form (2mal 1/4 gewinkelt) geändert. Das gab mehr
Platz, erlaubte eine leichtere Kellergestaltung und brachte auf der
Galerie einen flüssigeren Laufweg zu den Kinderzimmern.
- Die
Galerie wurde verbreitert, verläuft dafür aber nicht mehr in die
Raumecke, sondern gerade auf die Stirnwand.
- Die Tür
zum Bad konnte durch die Treppenänderung rausgezogen werden, so dass
das Bad nun rechtwinklig ist.
- Der
Balkon über der Terasse (an Galerie und Schlafzimmer) wurde etwas
vergrößert. Dafür entfällt der Balkon bei den Kinderzimmern und wurde
durch französische Balkone ersetzt.
Ansonsten
wurde nur an den Maßen "gefeilt" und Fenster etwas verändert.
|  | haus.o--tt--o.de
| |
| |