| |
Die Feinplanung - vom
Vertrag bis zum Baubeginn9.
Februar 2007 Der
Architekt ist da. Er schaut sich das Baugelände an, macht ein paar
Fotos und dann gehen wir das Planungsprotokoll (9 Seiten) sowie die von
R überarbeiteten Pläne mit den Anmerkungen durch. Das
Planungsprotokoll beschäftigt sich vorwiegend mit Angaben zum Bauplatz,
Regelungen zur Baugenehmigung, Nachbarschafts-Anfragen, Ausstattung
(Heizung) etc. Auf all diese Dinge möchte ich an dieser Stelle nicht
eingehen, das würde den Rahmen sprengen. Zu den von R zur
Verfügung gestellten neuen Plänen und Ansichten habe ich einige kleine
Änderungswünsche:
- Das
Einzelfenster im Wohnzimmer lasse ich unter den Balkon ziehen. Es ist
damit geschützter und - wichtiger - im Wohnzimmer bekomme ich eine
größere Stellwand für einen Schrank.
- Das Fenster im
Arbeitszimmer an der Stirnfront lasse ich so verschieben, dass die
Fenster an der Stirnfront eine harmonische Linie einnehmen.
- Da
ich mittlerweile bzgl. Eckbadewanne fündig wurde und diese Wanne nur in
einer Ausrichtung erhältlich ist muss die Eckbadewanne genau in die
andere Ecke im Badezimmer. Aus diesem Grund und auch um Platz zu
gewinnen streiche ich zudem einen der beiden Waschtische.
R
hat in einer Checkliste 11 Punkte aufgelistet. Darunter sind Punkte wie:
- Die
vorgesehene Wärmepumpe reicht für das EG/OG aus. Durch den großzügigen
Luftraum (Galerie) wird sie aber nicht mehr reichen um auch das KG zu
heizen. Da ich dies nicht vorhabe ist dies ok.
- Das
Treppenhaus im Keller muss wärmegedämmt werden, da für die
Kelleraußenwände keine Dämmung vorgesehen ist.
- Der
Dreieckserker wird nicht als Wintergarten, sondern als Wandbauweise mit
raumhohen Fenstern hergestellt.
- Zusätzliche
Installationswände wurden für KWL-Anlage benötigt. Diese sind jedoch so
geschickt angeordnet, dass es gar nicht auffällt oder "weh
tut".
- Aus bautechnischen Gründen ist die
Kellertreppe etwas schmäler als die Treppe ins OG.
- Durch
die Badezimmerwand muss das Galerie-Fenster an dieser Stelle
unterbrochen werden.
- Ein Kipp-Mechanismus
in den Galeriefenstern ist nicht möglich, weil die Fensterhöhe dann zu
klein wäre.
- Für
den Zugang zum Schornstein ist zu klären, ob dieser über einen
Außenaufstieg oder über das Dachflächenfenster im Bad erfolgen kann.
Ich
kann alle Punkte nachvollziehen und stimme allen Änderungen zu. Da
durch den Entfall der Kippfunktion bei den Fenstern im Dachreiter die
Lüftungsmöglichkeit hier entfällt und ich befürchte, dass sich im
Sommer die Wärme dort oben staut lasse ich ein zusätzliches
Dachflächenfenster einplanen. Bzgl. Zugang zum Schornstein
notiert
sich der Architekt die Adresse des Schornsteinfegers. Er will dort
anfragen, welche Lösung er akzeptiert. Die Standardlösung (Bodentreppe
mit Schornsteinfeger-Ausstieg) ist schwer realisierbar, weil der
Mitteltrakt bis zum First ausgebaut wird.
Auf den
Plänen hat R
zur Abstützung der Galerie und des Daches einen Pfeiler im Wohnzimmer
eingeplant. Der stört mich dort gewaltig. Der Architekt weiß im ersten
Moment gar nicht, was das sein soll, bis ihm dann klar wird, dass das
ein Trägerpfosten sein soll. Er stimmt mit mir überein dass das
ungünstig ist. Wir streichen den und geben stattdessen an, dass R zur
Abstützung einen Querbalken auf Deckenhöhe über die offene Galerie zur
Außenwand einbauen soll.
Der Architekt wird in den
nächsten
Tagen die Pläne überarbeiten. Zur Höhenbestimmung benötigt er aber
einige Maßangaben. Er wird dafür einen Vermesser beauftragen.
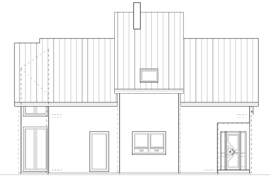
So
soll unser Haus dann mal aussehen:
Ansicht Nord:
Ansicht
West:
Ansicht
Süd:
Ansicht
Ost:
20. Februar 2007 Der
Vermesser ist da. Leider bin ich nicht zu Hause. Meine Eltern bekommen
mit, was er alles tut. Und das ist der totale Irrsinn: Er vermisst auf
dem kompletten 2800 Quadratmeter großen Grundstück jede Erhebung, sei
es ein Mäuerchen oder ein Strauch oder ein Baum. Selbst die, die gerade
von meinem Vater abgerissen werden, da da ja das Haus hin soll. Dummerweise
verläuft die offizielle Grenze noch im Hof des Nachbarn. Der hat zwar
von meinen Eltern diesen Teil abgekauft, dies aber nie beim Katasteramt
vermessen und ändern lassen. Dadurch muss der Vermesser auch dort in
den Hof, was zu einigen Streitigkeiten führt. Zu zweit war
der Vermesser fast den ganzen Tag da. Auf diese Rechnung bin ich mal
gespannt...
26.
Februar 2007 Auf
dem Grundstück haben die Stadtwerke einen Strompfeiler. An diesem
Pfeiler wird der Strom aus der Erde kommend auf eine Oberleitung
geführt. Das Haus meiner Eltern ist über diese Oberleitung
angeschlossen. Ich frage bei den Stadtwerken an, ob mein
Neubau
unterirdisch oder auch über eine Oberleitung versorgt wird. Es wird
eine Oberleitung. Ich informiere den Architekten, damit er dies bei der
Planung berücksichtigen kann.
27. April 2007 Heute
sind vom Architekten die Unterlagen für den Bauantrag gekommen. Er
hatte mich vorher telefonisch informiert, dass er den Bereich zwischen
Haus und Garage mit einer Überdachung versieht, damit die Garage
offiziell am Haus angebaut ist. Das er dafür aber das Fenster im
Arbeitszimmer wieder an seinen ursprünglichen Platz verschiebt davon
hat er nichts gesagt. Das ärgert mich, aber ändern werde ich
daran wohl kaum was können und wenn kostet das wieder Zeit. Also nehme
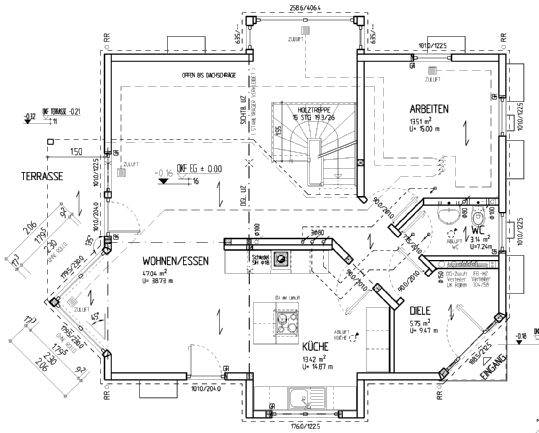
ich es so hin. So sehen jetzt die Pläne aus:
EG
OG:
11. Juni 2007 Mit
der Post kommt ein dicker Brief von R. Es sind der
Energiebedarfsnachweis und die Statik-Berechnungen für das Haus, beides
in zweifacher Ausfertigung. Eine für mich und eine für das Bauamt, die
ich dort in den Briefkasten werfe.
20. Juni 2007 Bei
der Bemusterung weist uns der Berater darauf hin, dass wir bei einem
1-zügigen Schornstein, wenn wir später einen Ofen einbauen wollen, für
diesen Ofen wegen der Lüftungsanlage eine Außenluft-Versorgung
brauchen. Bevor wir dann einen Kanal unter der Decke verlegen müssen
empfiehlt er uns, noch einen Lüftungsschacht in den Kamin einzubauen.
Ein sehr guter Vorschlag. Wir schauen uns die Pläne an. Da
wir
schon ziemlich genaue Vorstellungen von der Kücheneinrichtung haben
geht das aber an der Seite, unter der im Keller eine Wand ist. Das ist
aber kein Problem, diese kann dort unterbrochen werden. Wir wählen
diese Lösung.
21.
Juni 2007 Während wir bei R zur
Bemusterung waren hat das
Tiefbauunternehmen unseren Abwasser- Anschluss gesetzt und auch den
Revisionsschacht. Mein Vater sagt mir, sie hätten ein Rückschlagventil
eingebaut. Ok, mit dem Bauleiter der Kellerbaufirma muss ich über sein
Angebot ja sowieso reden. Ich schreibe ihm den aktuellen Stand und
welche Positionen aus seinem Angebot damit hinfällig werden. Ferner
ersetze ich die Isolierglasfenster wieder durch die Standardfenster.
Bzgl. der Wärmeisolierung bitte ich ihn um eine Stellungnahme, wie
sinnvoll die vom Berater vorgeschlagene Dämmung des Bereiches außerhalb
des Erdreiches ist.
27. Juni 2007 Bzgl.
Rückstauventil schaue ich viele Seiten im Internet durch. Die Meinungen
gehen weit auseinander. Mal wird sie Revisionsschacht gutgeheißen, weil
dann der ganze Druck vom Haus wegbleibt. Mal wird sie unter dem Keller
gutgeheißen, weil dann für die oberhalb der Rückstauebene liegenden
Abläufe der Ablauf noch möglich wäre (kann ich nicht ganz
nachvollziehen, wenn die Rohre von außen zu sind kann doch mit oder
ohne Klappe nichts mehr raus). Ich schreibe ein Mail an das Bauamt und
frage nach, wie man dort zu diesem Thema steht.
27. Juni 2007 Frau
P vom Bauamt ruft mich bzgl. der Rückstauklappe an. Ich hätte die Vor-
und Nachteile ja schon gut aufgelistet. Sie würden beides akzeptieren.
Am besten wäre eine Zwischenlösung - nahe am aber nicht unter dem Haus.
Aber das würde nochmal Kosten verursachen und macht so gut wie niemand.
Von den beiden Alternativen würde sie die Rückstauklappe unterm Haus
etwas mehr empfehlen als im Revisionsschacht.
28. Juni 2007 Das
Tiefbauunternehmen teilt mir auf Anfrage mit, dass ein Mißverständnis
vorliegen müsse. Sie hätten kein Rückstauventil eingebaut, sondern nur
eine Vorrichtung, in die ein solches Ventil eingesetzt werden kann. Ok,
damit ist das klar, der Kellerbauer kann sie unterm Keller installieren. Bzgl.
der Wärmeisolierung habe ich mich für die komplette Isolierung
entschieden. Ich liste alle Änderungen auf, errechne den sich dadurch
verändernden Betrag, passe das Summenblatt der Bemusterung entsprechend
an und sende es R als Freigabe der Bemusterung.
6. September 2007 Jetzt
ist nach dem der ganze Hickhack mit der Finanzierungssicherstellung
geklärt ist wieder eine Woche ins Land gegangen, ohne dass ich von R
irgendetwas gehört hätte. ICh rufe an. Man sagt mir, dass morgen die
letzten Pläne fertig würden und nächste oder übernächste Woche der
Bauleiter zum Baustellengespräch käme. Er würde sich in den nächsten
Tagen melden. Danach ginge es dann auch zügig mit dem Kellerbau
los.
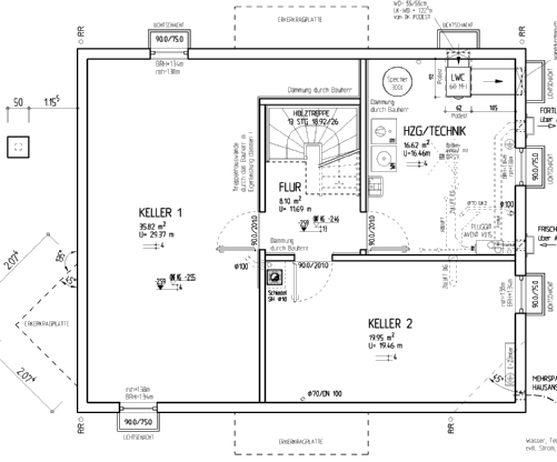
8.
September 2007 Post
von R. Der Brief enthält den Ausführungsplan für den Keller sowie den
Kellerdecken- Aussparungsplan mit den zusätzlichen Kragplatten für die
Erker. Im Schreiben heißt es, das damit die Planung abgeschlossen ist.
Die Pläne sind zeitgleich an das Kellerbau-Unternehmen mit dem Auftrag
zur Errichtung des Kellers gegangen. Wann genau es losgeht erfahre ich
dann wohl von denen. Im Brief heißt es dazu "Der Baubeginn erfolgt in
Abstimmung mit unserer Terminstelle und der Kellerbaufirma". Bei
genauer Durchsicht der Pläne entdecke ich zwei Fehler. Zum einen ist
für den Ablauf Bad im Keller nicht der Abwasser-Anschluss
eingezeichnet. Und zum zweiten ist eine der beiden Schnittansichten für
den Treppenabgang von der falschen Seite dargestellt. Ich informiere
die Planungsabteilung von R sicherheitshalber per Mail.
11. September 2007 Der
Planungsleiter von R ruft mich an. Der Schnitt würde stimmen. Aber ja,
der Abwasser-Anschluss für das
Bad wurde vergessen. Und er gestaltet sich nicht so ganz einfach, da er
den Anschluss der Kamin- Entwässerung kreuzen würde. Er fragt mich ob
ich einverstanden sind, dass sie das Abwasser-Rohr vom Bad unter der
Kellerdecke bis zur Außenwand führen. Da es keine sinnvolle Alternative
gibt stimme ich zu.
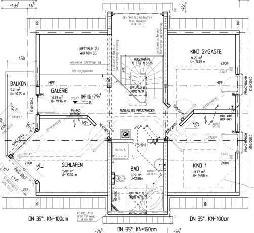
12. September 2007 Erneut
Post von R. Diesmal kommen die Pläne für EG und OG sowie die
Schnittpläne. Im Begleitschreiben weisen sie daraum hin, dass im Bad
noch eine Vorsatzwand für die Bade- wanne erforderlich wurde. Deshalb
musste das Waschbecken um 6,5 cm verschoben werden. Ferner wurde wegen
der Handtuch-Heizung neben der Dusche ein Verschieben der Toilette um
einige Zentimeter erforderlich. Alle 3 Änderungen sind ok und stören
nicht. Die genaue Durchsicht der Pläne bringt diesmal keine
Überraschungen. Ich bin vollauf zufrieden.
14. September 2007 Mein
Vater ist im Garten und misst und markiert und... Er kann es wohl gar
nicht abwarten. Oder was soll das werden? Die
Antwort kommt 2 Stunden später. Er war auf dem Bauamt. Hat dort
nachgefragt ob ich das Haus etwas drehen dürfte (und dabei den Abstand
zur südöstl. Grenze von 5 auf 3 Meter reduzieren. Das würde wesentlich
mehr von der alten Hoffläche erhalten. Und kaum zu glauben, das Bauamt
soll gesagt haben das ginge schon. Ich müsste dann aber das Haus
parallel zum Elternhaus stellen. --- ohne Worte, im Frühjahr war lt.
Architekt die 5-Meter-Grenze noch absolut tabu. Ich setze mich
hin
und zeichne in den Plan mögliche Änderungen ein. Es zeigt sich sofort,
drehen ist unsinnig. Damit drehe ich mich mit Balkon und Terasse von
Osten nach Norden und weg vom zukünftigen Garten. Aber was gut gehen
würde wäre, das Haus nach Südosten zu schieben. Schon ein Meter (wenn
das Bauamt nur den Erker in der 5-Meter-Zone erlauben würde) würde
schon viel bringen. Nochmehr natürlich, wenn ich gleich 2 Meter
schieben dürfte. Zumal damit der "Engpass" Abstand Garage auf >
3
Meter wachsen würde. Übrigens: von wegen der Bauleiter meldet
sich
wahrscheinlich Freitag oder Montag. Der Freitag ist rum, der Montag und
der Rest der Woche auch. Gehört habe ich von ihm nichts...
15. September 2007 Wieder
Post von R. Die neuen Kellerpläne. Jetzt läuft die
Abwasserleitung unterhalb der Decke von Keller 1 zur Außenwand und
vereinigt sich dort mit dem Abwasser der Küche. Den Vermerk
"Verkleidung durch den Bauherrn" finde ich weniger nett. Dafür dass ich
dieser Lösung zugestimmt habe hätten sie dies wenigstens tun können. Dafür
haben sie allerdings eine komplette Dämmung/Füllung des schmalen (ca.
15cm breiten Schlitzes hinter dem Kamin vorgesehen. Interessant:
der Schnitt wurde gedreht. Also hatte ich doch Recht!!!
18. September 2007 Ich
habe immer noch keine weitere Informationen und rufe den Kellerbauer
an. Er sagt mir dass R Druck macht er solle so schnell wie möglich den
Keller erstellen. Er müsse noch die Termine abstimmen, dann würde er
sich melden. 2 Stunden später ruft er an. Er hätte Probleme
gehabt
mit dem Erdaushub. Das vorgesehene Tiefbauunternehmen hat so schnell
keine Zeit. Er hat nun ein anderes Unternehmen beauftragt. Die
Bodenplatte soll am 10. und der Keller am 12. Oktober erstellt werden.
Die übrigen Termine schickt er mir zu.
19. September 2007 Nochmal
ein Anruf vom Bauleiter für den Keller. Er hätte gesehen dass im Plan
eine Treppe vor dem Eingang eingezeichnet ist. Ob ich das wirklich so
wollte. Es wäre doch viel besser diese erst zu planen wenn das Haus
steht. Damit überrascht er mich. Ich muss erst mal darüber nachdenken.
21. September 2007 Noch
immer habe ich keine Termine. Nun wird es langsam eng, ich muss dem
Vermesser ja ein klein wenig Vorlauf auch einräumen. Ich rufe ihn an
und informiere ihn. Er bittet mich, ihm den Lageplan und die Pläne für
Keller und EG zuzusenden. Dann bereitet er sich schon mal vor und kann
dann kurzfristig die Grobverpflockung machen.
23. September 2007 Noch
immer keine Termine. Ich schreibe dem Bauleiter für den Keller nochmal
ein Mail und weise ihn auf die Dringlichkeit hin.
24. September 2007 Der
Terminplan ist da:
| bis
28.09. | Grobverpflockung | Vermesser | | 01.10.-05.10. | Ausschachtung | Tiefbau-Unternehmen | | bis
08.10. | Feinabsteckung mit Höhenkontrolle
Sauberkeitsschicht | Vermesser | | 10.10. | Erstellung
Bodenplatte | Kellerbau-Unternehmen | | 12.10. | Keller
stellen und betonieren | Kellerbau-Unternehmen | | 16.10. | Abdichtung | Kellerbau-Unternehmen | | 23./24.10. | Dämmung,
Noppenbahn, Lichtschächte | Kellerbau-Unternehmen | | 25./26.10. | Regenrohre,
Keller anfüllen | Tiefbau-Unternehmen | | ab
29.10. | Abnahme | Hausbau-Unternehmen |
Nahezu
gleichzeitig kommt ein Anruf des Tiefbau-Unternehmens mit der Frage, ob
der Vermesser die Grobverpflockung bereits am 26. September machen
könnte. Dann würden sie bereits am 27. September mit dem Aushub
beginnen. Und der Bauleiter von R ruft mich an: Er denke es
wäre gar
keine Treppe nötig, man könne doch das Erdreich aufschütten und einen
ansteigenden Weg machen. Ich weise ihn darauf hin, dass vor dem Eingang
der Hof ist und wir den nicht schief haben möchten. Zudem steht ca 5
Meter weg die Garage und die will ich nicht von außen zuschütten. Er
schlägt vor, sich das vor Ort gemeinsam anzusehen und dann zu
entscheiden.
25.
September 2007 Der
Vermesser stimmt zu, er kommt morgen zur Grobverpflockung. Ich
informiere das Tiefbau-Unternehmen, dass sie am Donnerstag anfangen
können. Danach rufe ich gleich den Bauleiter vom
Kellerbau-Unternehmen an und informiere ihn auch. Er ist hocherfreut
dass das klappt. Bzgl. Treppe hätte er noch mal nachgedacht, er fände
die Lösung die R vorschlägt sehr gut und würde die Treppe so wie in den
Plänen eingezeichnet einplanen, wenn mir das Recht ist. Ist mir, ich
finde diese Lösung auch sehr gut.
27. September 2007 Vom
Bauleiter des Kellerbauers bekomme ich einen erneuten Anruf. Er sagt
mir er hätte die Treppe mit 5 Stufen geplant. Sähe gut aus. Er würde
mir den Entwurf zusenden, müsse aber schnell das OK haben weil er sie
dann Montag in die Produktion geben müsse.
2. Oktober 2007 Der
Montag ist rum, einen Entwurf für die Eingangstreppe habe ich nicht
erhalten. Den Kellerbauer konnte ich telefonisch auch nicht erreichen.
Mal sehen wie das weitergeht.
3. Oktober 2007 Wieder
eine Meldung vom Bauleiter Keller: R hätte ihn informiert dass die
Treppe entfallen würde. Hä??? Mit mir hat keiner gesprochen. Ich rufe
dort trotzdem nicht an. Mal sehen wie das weitergeht...
5. Oktober 2007 Der
Bauleiter für den Keller besichtigt die Baugrube und fragt mich, ob
mich Rensch bzgl. Treppe angesprochen hätte. Er hätte Rensch nochmal
angerufen und sie soll jetzt doch gebaut werden. Am Abend
finde ich
dann ein Mail von R vor. Wegen der geänderten Eingangssituation sei
eine andere Treppenanlage notwendig. In der Anlage wäre das
Änderungsprotokoll beigefügt, das ich bitte bis 9. Oktober
unterschrieben zurücksenden soll. Hä??? Geänderte
Eingangssituation? Daran hat sich nie etwas geändert!!! Die
Anlage enthält nur eine Aufpreisberechnung. Nicht mal einen Entwurf,
wie es jetzt aussehen soll. Zudem hat mir der Kellerbauer gesagt er
hätte 5 Stufen geplant. 4 waren schon in der bisherigen Planung, 2 mehr
soll ich jetzt bezahlen. 4 + 2 = 5 ??? Und diese 2 Sufen mehr sollen
mehr als doppelt so viel kosten wie die 4 anderen inkl. Podest??? Es
geht nicht anders, R zwingt mich zum dritten mal zu einem
Beschwerdebrief. So geht das nicht. Erst planen sie völlig an mir
vorbei und dann kommen sie mit einer solchen Preis- vorstellung. Da
schwillt mir der Kamm. Ich schreibe klar und deutlich was ich von dem
Verhalten halte und dass ich diese Preisänderung nicht akzeptiere. Mal
sehen wie sie nun reagieren. Den Kellerbauer informiere ich,
dass
ich die Änderung gemäß Änderungsprotokoll ablehne und dass ich erwarte,
dass R nun die Treppe streicht. Das wollte ich zwar nicht, aber für den
Preis den sie für die Rohtreppe (also nur Beton ohne Belag) haben
wollen bekomme ich von anderen garantiert eine komplette Treppe und
mehr.
6.
Oktober 2007 Mit
der Post kommt die Statik-Berechnung für den Keller in doppelter
Ausfertigung. Eine für mich, eine für das Bauamt. Ich werfe sie dort in
den Briefkasten.
8.
Oktober 2007 Eigentlich
hätte ich erwartet dass nach den Unstimmigkeiten und meiner Ablehnung
bzgl. Eingangstreppe R sich heute meldet. Aber es tat sich nichts.
10. Oktober 2007 Beim
Bau der Keller-Bodenplatte markieren die Bauarbeiter eine Stelle, an
der ich nichts erwarte. Ich frage nach und bekomme zu hören, dass 3
Fundamente an dieser Ecke erstellt werden sollen. Das kann nur heißen
dass die Treppe noch in der Planung ist. Ich rufe den Bauleiter für den
Keller an. Er sagt mir, R und er wollten mit mir vor Ort einen Termin
machen. Das Angebot von R sei sehr günstig und er wäre sich sicher dass
ich letztendlich dann zustimmen würde. Ich widerspreche, was soll ich
mit solchen Fundamenten wenn ich später die Treppe anders planen.
Letztendlich entscheiden wir das die Treppe wegbleibt und ich separat
darum kümmere.
18.
Oktober 2007 Der
Bauleiter von R hat beim Baustellengespräch vorgeschlagen, ich solle
zusehen dass sobald als möglich die Stadtwerke den Strom- und
Wasseranschluss legen. Strom geht allerdings erst wenn das Haus steht,
denn der kommt ja über einen Dachständer. Der Bauleiter für
den Keller bot aber an, dass die Stadtwerke bereits den Wasseranschluss
legen können.
19.
Oktober 2007 Ich
habe bei den Stadtwerken angerufen und die Möglichkeit offeriert, die
offene Baugrube für den Wasseranschluss zu nutzen. Man will darauf aber
nicht eingehen. Den Stadtwerken ist es lieber, wenn sie selbst die
Grube füllen können. Da nehmen sie gerne in Kauf, dass sie auch vorher
wieder aufbuddeln müssen.
22. Oktober 2007 Der
Bearbeiter der Stadtwerke ist da und schaut sich den Keller an. Unter
der Treppe zum Eingang will er nicht den Anschluss verlegen, so dass
wir den etwas zur Seite schieben müssen. Bzgl. Verfüllung
der
Baugrube wäre es ihm am liebsten, wenn in diesem Bereich das
Tiefbau-Unternehmen ca. 1 m nicht anfüllt. Dann können sie von dort den
Anschluss machen und müssen nur noch den Rest auffüllen.
23. Oktober 2007 Der
Bauleiter für den Keller ist diese Woche in Urlaub. Sein Vertreter ruft
mich an und fragt, wann R mit dem Haus kommen will. Ich sage ich weiß
es nicht. Er informiert mich, dass das Tiefbau-Unternehmen
Terminprobleme hat und wenn R nicht gleich übernächste Woche kommen
will dann könnten sie das Anfüllen bei mir etwas nach hinten schieben.
Er will bei R anfragen und mich dann informieren.
31. Oktober 2007 Heute
mal wieder ein Mail von R (vom Ausstattungsberater). Er stellt die
Frage, wie wir gerne das Rücklaufgeländer im Erdgeschoss hätten: als
Brüstungsgeländer oder als Harfen- geländer. Ich dachte
eigentlich
mit der Bezeichnung "Rücklaufgeländer" wäre schon ein Brüstungs-
geländer gemeint, aber es ist ja gut wenn sie nachfragen. Wir
entscheiden uns für selbiges, das Harfengeländer wirkt uns zu sehr wie
ein "Käfig". |  | haus.o--tt--o.de
| |
| |